Product Series
                        推薦產品
河南華東起重機械設備公司
服務熱線:400 086 9590
                        公司:河南華東起重機械設備有限公司
                        聯系人:賈經理
                        聯系電話:13903802779
                        地址:河南新鄉市封丘縣起重機工業園區
                        
                    
當前位置: 起重機 > 起重機文章
QDY型冶金雙梁起重機技術參數
時間:2024-05-24來源:起重機廠家瀏覽次數:1
冶金橋式起重機產品介紹:
QDY型冶金橋式起重機是在QD型通用橋式起重機基礎上改進設計的,主要用于吊運熔融金屬的冶金、鑄造等場所,整機工作級別為A7,額定起重量小于75T,起重機裝配與試驗符合國家質量監督檢驗檢疫總局所發的質檢辦特【2007】375號文件。其他吊運熔融的非金屬物料和吊運熾熱固態金屬的場所也可參照選用。
環境條件:
1、起重機電源為三相交流電,額定頻率為50HZ,額定電壓為380V;
2、工作環境溫度為-10℃~60℃;
3、在40℃的溫度下相對濕度不超過50%;
4、如超過上述要求,根據用戶要求按訂貨合同條款執行。
訂貨須知:
用戶在訂貨或簽訂合同時,必須將本機的技術參數(額定起重量、起升高度、跨度等)描述清楚,以便提供滿足工況要求和工作條件的產品。
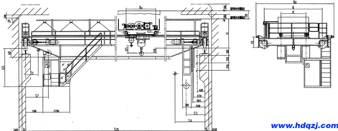
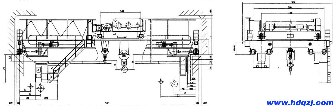
冶金橋式起重機結構簡圖:


冶金橋式起重機參數表







    














                
