Product Series
                        推薦產品
河南華東起重機械設備公司
服務熱線:400 086 9590
                        公司:河南華東起重機械設備有限公司
                        聯系人:賈經理
                        聯系電話:13903802779
                        地址:河南新鄉市封丘縣起重機工業園區
                        
                    
當前位置: 起重機 > 起重機文章
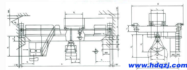
5/5~16/16噸抓斗、吊鉤兩用橋式起重機技術參數
時間:2024-05-27來源:起重機廠家瀏覽次數:1
抓斗吊鉤兩用橋式起重機是在散料場所使用較多的一種雙梁橋式起重機,型號為QN,這種起重機既可使用抓斗抓取各類散狀物料,也可利用吊鉤吊取其他重物。小編為大家介紹下5/5噸、10/10噸、16/16噸抓斗吊鉤兩用橋式起重機的技術參數。
起重機結構圖:

5/5~16/16噸抓斗、吊鉤兩用橋式起重機技術參數表
起重量 Lifting Weight  | t  | 5/5  | 10/10  | 16/16 | ||||||||||||||||||||
跨度 Span m  | 10.5 | 13.5  | 16.5  | 19.5  | 22.5  | 25.5  | 28.5  | 31.5  | 10.5 | 13.5  | 16.5  | 19.5  | 22.5  | 25.5  | 28.5  | 31.5 | 19.5 | 22.5 | 25.5 | 28.5 | 31.5 | |||
z大起升高度Max Lifting Height 
  | m  | 20/22  | 18/22  | 22 | ||||||||||||||||||||
工作級別 Working class  | 
 A6  | |||||||||||||||||||||||
速度  | 起升 Lift 
  | m/min  | 40.1/15.4  | 40.26/14.5 | 41.8/13 | |||||||||||||||||||
小車運行 handcar travel  | 
 44.6  | 45.6 | 43.2 | |||||||||||||||||||||
大車運行 crat travel  | 
 93.7  | 113 | 
 112.5  | 101 | 98 | 87.3 | ||||||||||||||||||
電機  | 起升 Lift  | 抓斗 Grab  | Type/  | YZR225-8/22  | YZR208S-10/37  | YZR315M-10/75 | ||||||||||||||||||
吊鉤 Hook  | 
 YZR180L-6/15  | YZR225M-8/22 | YZR250M1-6/37 | |||||||||||||||||||||
小車運行 handcar travel  | YZR132M2-6/3.7 
  | YZR160M1-6/5.5 | YZR160M2-6/7.5 | |||||||||||||||||||||
大車運行 crat travel  | YZR160M2-6/7.5×2  | YZR160L-6/11×2 | YZR160M2-6/7.5×2  | YZR160L-6/11×2 | YZR200L-8/15×2 | |||||||||||||||||||
主要尺寸  | B  | 6355  | 6485 | 7090  | 6385  | 6485 | 7145 | 6870 | 7000 | |||||||||||||||
Ba  | 4000  | 4100 | 5000  | 4000  | 4100 | 5000  | 4800 | 5000 | ||||||||||||||||
BX  | 
 3550  | 4420 | 5250 | |||||||||||||||||||||
b  | 
 230  | 230 | 250 | 250 | 300 | |||||||||||||||||||
LX  | 
 2000±2  | 2000±2 | 2500 | |||||||||||||||||||||
H  | 1893 | 1943 | 2095 | 2185 | 2418 | 2548 | ||||||||||||||||||
H1  | 2548 | 2608 | 2708 | 2858 | 3008 | 3108 | 3258 | 3408 | 2550 | 2610 | 2760 | 2770 | 2920 | 3070 | 3220 | 3320 | 2924 | 2944 | 3094 | 3194 | 3294 | |||
H2  | 735 | 785 | 785 | 890  | 880 | 1010 | ||||||||||||||||||
S1  | 
 1520  | 1700(1800) | 2175(2275) | |||||||||||||||||||||
S2  | 
 1500  | 1500(1600) | 1575(1675) | |||||||||||||||||||||
| F | 128 | 228 | 328 | 478 | 628 | 728 | 878 | 1028 | 130 | 230 | 380 | 380 | 530 | 680 | 830 | 930 | 544 | 564 | 714 | 814 | 914 | |||
h  | 
 2020  | 2550 | 2795 | |||||||||||||||||||||
 
 重量  | 小車 Handcart  | t  | 
 7.6(8.4)  | 11.5(12.5) | 19.9(21) | |||||||||||||||||||
總重量Total Weight 
 
  | 室內Indoor | 22.7 | 24.4 | 26.4 | 29.2 | 32 | 36.8 | 40.5 | 43.8 | 26.5 | 28.4 | 31.1 | 35 | 38.4 | 43 | 46.8 | 50.4 | 56.4 | 60.3 | 64.8 | 67.7 | 72 | ||
| 室外Outdoor | 23.7 | 25.3  | 27.3  | 30.1  | 32.9  | 37.7  | 41.4  | 44.7  | 27.4 | 29.3  | 32.5  | 35.8  | 39.3  | 43.9  | 47.8  | 51.2 | 57.6 | 61.7 | 66.2 | 69.1 | 73.5 | |||
z大輪壓 Max.Wheel Pressure 
  | 室內Indoor | 10.2 | 10.9 | 11.6 | 12.7 | 13.1 | 14.7 | 15.8 | 16.8 | 14.8 | 15.9 | 17.3 | 18.6 | 19.6 | 20.9 | 21.9 | 22.9 | 27.3 | 28.4 | 30.6 | 31.7 | 32.1 | ||
| 室外Outdoor | 10.6 | 11.3  | 12  | 13.1  | 13.4  | 15.1  | 16.1  | 17.1  | 15.2 | 16.3  | 17.7  | 19  | 19.9  | 21.3  | 22.3  | 23.3 | 27.9 | 28.8 | 30.9 | 32 | 32.4 | |||
| 抓斗Grab型號Modelu113109110105106101102127123124119120115116141137138133134129130類型Type輕型Light中型Medium重型Heauy超重型spuer heavy輕型Light中型Medium重型Heauy超重型spuer heavy輕型Light中型Medium重型Heauy超重型spuer heavy容積Volumem32.51.510.755321.584.83.22.5容重Densityt/m3≤1>1-1.7>1.7-2.5>2.5-3.3≤1>1-1.7>1.7-2.5>2.5-3.3≤1>1-1.7>1.7-2.5>2.5-3.3自重Dead Weightkg263325492615250625682479254648004803486648504913473047937841799381438008815981558305主要尺寸(mm)MainSizeBa163414441238116020601764152814162350207817921628Bb242521752025187529702670247022303515313529152665Bc312027402900253026902340250039003430359032203380392030804380405042503750395034303630Hp313529353015283529152735281539903747382736403720349035704775460547054455445542854385Hb-3615-3385-3605-3255-3475-3125-3345-4560-4297-4517-4125-4345-3910-41305530524354834979521948115051 | ||||||||||||||||||||||||
薦用鋼軌 Steel track  | 
 43kg/m  | QU70 □90×90 | ||||||||||||||||||||||
電源 Power Supply  | 三相交流3-PhaseA.C.50Hz 380V  | |||||||||||||||||||||||




    














                
