Product Series
推薦產品
河南華東起重機械設備公司
服務熱線:400 086 9590
公司:河南華東起重機械設備有限公司
聯系人:賈經理
聯系電話:13903802779
地址:河南新鄉市封丘縣起重機工業園區
當前位置: 起重機 > 起重機文章
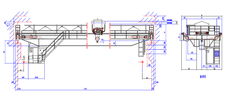
QD型通用橋式起重機 橋門式起重機
時間:2024-05-10來源:起重機廠家瀏覽次數:1

產品特點
QD型通用橋式起重機采用卷揚機作為起升機構,載重量較大,使用頻率高,經久耐用。適用于機械制造、工廠生產線、鋼廠、變電站、水廠等場所。
產品特性
QD型電動雙梁橋式起重機配置吊鉤適用于機械加工、裝配車間、金屬結構車間、冶金與鑄造車間以及各類倉庫的吊運工作;配置抓斗適用于冶金、水泥、化工等工業部門室內或露天的固定跨度從事散粒物料的搬運工作。
配置吊鉤適用于機械加工、裝配車間、金屬結構車間、冶金與鑄造 車間以及各類倉庫的吊運工作;配置抓斗適用于冶金、水泥、化工等工業 部門或露天的固定跨度從事散粒物料的搬運工作。
工作級別:A5(用于工作不太頻繁,如一般機械加工和裝配車間)。A6( 用于工作較為頻繁,如冶金和鑄造車間的輔助吊運)
額定起重量:5t、10t、16/3.2t、20/5t、32/5t、50/10t6種規格,(起重量用分數形式表示,分子為主鉤起重量,分母為副鉤起重量)
跨度:10.5m、13.5m、16.5m、19.5m、22.5m、25.5m、28.5m、31.5m8種規格。
產品參數

產品示意圖





















