Product Series
推薦產品
河南華東起重機械設備公司
服務熱線:400 086 9590
公司:河南華東起重機械設備有限公司
聯系人:賈經理
聯系電話:13903802779
地址:河南新鄉市封丘縣起重機工業園區
當前位置: 起重機 > 起重機文章
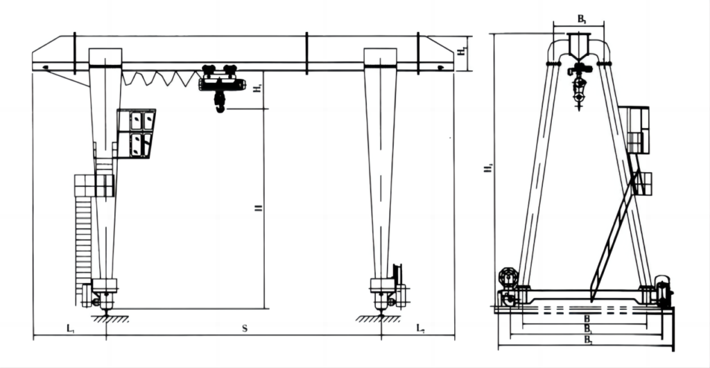
MH型16t單梁門式起重機參數Mh型16噸電動葫蘆門式起重機尺寸
時間:2024-01-18來源:起重機廠家瀏覽次數:1
16噸單梁門式起重機介紹
MH型16t單梁門式起重機(以下簡稱16噸單主梁門式起重機),16噸電動葫蘆門式起重機與16噸電動葫蘆配套使用,是一種有軌運行的中小型起重機,其適用起重量1~32噸,適用跨度12~35米,工作環境-20℃~+40℃內。
Mh型16噸電動葫蘆門式起重機為一般用途起重機,多用于露天場所及倉庫的裝卸或抓取物料,本產品有地面操縱和室內操縱兩種型式。
16噸單梁門式起重機圖片
16噸單梁門式起重機工作環境:
單梁門式起重機工作環境在-20℃-+40℃內,禁止吊運熔化金屬及易燃、易爆物品,可根據客戶使用要求制成單端外伸懸臂式或無懸臂式結構。
16噸單梁門式起重機結構圖
16噸單梁門式起重機參數尺寸表
| 起重量Cap(t) | 16噸 | ||||||||||
| 起升高度Lifting HeightH(m) | 6 | 9 | |||||||||
| 跨度Span(m) | 10 | 14 | 18 | 22 | 26 | 10 | 14 | 18 | 22 | 26 | |
| 工作制度Duty | A3-A5 | ||||||||||
| 起升速度Lifting Speed | 3.5,3.5/0.35m/min(標準起升速度為3.5m/min) | ||||||||||
| 葫蘆運行速度Travelling | 20、30m/min(標準葫蘆運行速度為20m/min) | ||||||||||
| 起重機運行速度Travelling | 20、30、45m/min(標準起重機運行速度為30m/min) | ||||||||||
| 操縱方式Work type | 地控、室控、遙控 | ||||||||||
| 電源Powet Supply | 3AC,380V,50HZ | ||||||||||
| 裝機容量Chief volume | 19KW | 20.6KW | 27KW | 19KW | 20.6KW | 27KW | |||||
| 薦用軌道Crane Rail | P24、P38 | ||||||||||
|
主要尺寸(mm) Main Dimension |
H1 | 1900 | |||||||||
| H2 | 8982 | 9117 | 9117 | 9492 | 9492 | 11982 | 2117 | 12117 | 12492 | 12492 | |
| W | 6130 | 6000 | 6430 | 6130 | 6000 | 6430 | |||||
| B | 6880 | 6750 | 7180 | 6880 | 6750 | 7180 | |||||
| L1 | 2 | 2.8 | 3.6 | 4.4 | 5.2 | 2 | 2.8 | 3.6 | 4.4 | 5.2 | |
| L2 | 2.5 | 3.5 | 4.5 | 5.5 | 6.5 | 2.5 | 3.5 | 4.5 | 5.5 | 6.5 | |
| 最大輪壓(KN)Max.Wheel loading | 有懸臂 | 168 | 173 | 184 | 198 | 206 | 176 | 186 | 192 | 209 | 217 |
| 無懸臂 | 140 | 144 | 148 | 157 | 161 | 148 | 152 | 155 | 166 | 170 | |
| 起重機總重(t)Total weight | 有懸臂 | 16 | 19 | 21.5 | 26.1 | 28.8 | 18.8 | 22.1 | 13.1 | 16.7 | 19.1 |
| 無懸臂 | 15.1 | 17.4 | 19.2 | 22.8 | 24.6 | 18 | 20.6 | 22 | 26.3 | 28.2 | |
-
28
2025-05
單梁門式起重機中的電動機有軸電流量時,可以采用哪些對策?
軸電流量,是單梁門式起重機變頻電動機、高壓電機較為普遍的一種不良影響狀況,*立即的進攻目標是滾動軸承系統軟件,存有這類問題的電動機,滾動軸承系統軟件會在較短的時間內被損壞,在具體運用中,更為多見的處理是重復的拆換滾動軸承,自然也包含拆換知名品牌的滾動軸承,仍然失效。 為了更好地防止單梁門式起重機軸電流量對電動機軸承系統軟件的不良影響,相對性標準的電機廠家,會對電動機的滾動軸承系統軟件在生...詳細
-
06
2025-05
單梁門式起重機節約維修的秘訣有什么?門式起重機在制造中的焊接缺陷有哪些?
單梁門式起重機節約維修的秘訣有什么年前接到很多要配件和做維護保養的電話,可能是年終要對所有的機械設備進行維護,這種方法我不建議大家使用,為什么呢?因為起重機是有一定危險性的設備,一旦發生事故后果會非常嚴重,但是仍然有些單位一意孤行,擔心維護費用太高,今天河南鴻升起重機廠家給大家一下節約維護的秘訣。di一:確定好單梁門式起重機的養護周期,比如說:月檢、季檢、年檢,或者可以做定期,不定期維護,也可以根...詳細
-
06
2025-03
電動單梁門式起重機的使用前注意事項、單梁門式起重機的檢查
電動單梁門式起重機的使用前注意事項每一種設備在使用前都有一些注意事項,電動單梁門式起重機作為單梁起重機的其中一種,在使用前都需要注意哪些呢,很多客戶不太清楚,來看看下文吧。1.試運轉:在空載條件下,接通電源,松開并檢查各操作機構的控制系統和**裝置,應靈敏、準確、**可靠,方可使用。2.調整小車的極限和升降的上下限。3、不得超過橋式起重機規定的起重能力。4、不得沿主梁方向斜吊物品。5.本起重機不適...詳細
-
28
2025-02
龍門吊安裝時需要注意的問題有哪些?單梁門式起重機操作前的準備
龍門吊安裝時要注意的問題如下:1、 龍門起重機零件太長,由于道路問題無法進入現場,這是經常發生的情況,**您需要制定運輸計劃,充分考慮這種現象的緊急對策,一種常見的方法是預先準備汽車起重機,與車隊一起跋涉,一旦車難以轉彎,就會使用汽車起重機來吊起起重機的長零件和拖車的組合,以配合拖拉機和轉向。2、 龍門大部分遠光燈都是分段輸送到現場的。現場對接和組裝。組裝和焊接后,檢查尺寸。發現中跨足弓和懸臂的隆...詳細
-
13
2024-12
電動葫蘆單梁門式起重機如何避免或克服攪繩的現象
電動葫蘆單梁門式起重機在使用過程中出現了許多亂繩、咬繩、亂繩、攪繩的現象,增加了維護成本,嚴重影響了生產和施工,是門式起重機操作人員非常擔心的大問題。如何避免或克服這個問題? 一、提高和提高卷筒生產工藝水平。 1.如果卷揚超過24米時,盡量采用單層纏繞式,將卷筒繩槽加工成斜繩槽(缺點是滑輪倍率高,起升速度慢,卷筒粗而長,成本高) 2.為了經濟起見,24米以上的大起重大多是雙層或多層纏繞。建...詳細
-
29
2024-11
單梁門式起重機安裝調整注意事項都有哪些
單梁起重機安裝調節常見問題都有哪些? 1,起重設備到站后卸貨運送,應注意防止產生碰撞、彎、扭等**事故。因此應遵循以下要求: 2,吊裝時到難得少有2個起吊,起吊的綁扎處須有墊片物,綁扎以走輪或承重梁自身為限,并盡量設在零部件兩邊。 3,如無輕型載貨汽車等設備搬遷時,應將零部件等閑置于平車里拖拽,禁止在路面或燕尾導軌上拖拽。 4,儲放時要安裝 穩定,并且用木枕放平墊圈實,木枕要對稱性置放,路...詳細




















